disposizione cucina e scarichi
18 giorni fa
Risposta in evidenza
Ordina per:Più vecchia
Commenti (6)
- 18 giorni fa
Discussioni simili
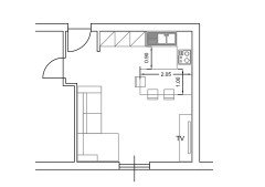
Consiglio disposizione living e cucina
(15) commentiCiao Andrea, anche se Monica ti ha già risolto il dilemma in maniera impeccabile, provo a dare un contributo diverso, in modo che tu abbia un'altra alternativa...alternativa. :) Se non hai problemi a spostare gli scarichi, potresti considerare l'idea di isola attrezzata + colonne. Avresti una cucina scenica, essendo il tuo un open space, e non ti mancherebbe piano di lavoro o spazio contenitivo. Il tavolo da pranzo lo posizionerei in modo da godere del camino e del terrazzo, mentre il soggiorno lo penserei opposto a come lo hai disegnato tu, così da poter vedere dal divano la cucina e comunicare in una serata tra amici, senza problemi. Ovviamente ho voluto forzare la mano con il "fuori dagli schemi" per offrirti un'altra opzione. Non voglio con questo sminuire il lavoro di Monica, anzi, se opti per una soluzione più "tranquilla" e classica, segui senza problemi i suoi consigli, sono molto validi. Buon lavoro! Ps: nel caso tu scelga l'opzione di Monica, volevo consigliarti un sistema simile a quello della foto, e cioè con il tavolo che viene integrato alla penisola (in questo caso è un'isola ma rende l'idea), per dare maggior continuità alla cucina.... mostra di piùAiuto cucina e scarichi
(2) commentici sono almeno 10 cm di profondità nel massetto per alloggiare la tubazione? lo scarico potrebbe essere da mm40, almeno 1cm di pendenza (2,70x1=3cm circa), 1 cm rivestimento a terra ed almeno 15 mm di affogamento nel massetto, quindi 4+3+1+1,5= cm10 minimo... mostra di piùDisposizione cucina e apertura finestra
(7) commentiQualsiasi informazione che ritenga possa essere utile per avvicinarsi di più alle sue esigenze e aspettative sulla cucina che desidera avere. Chi e come la si utilizza, il budget a disposizione, la posizione degli scarichi e delle prese, la dimensione dell'intero appartamento sono le prime cose che mi chiederei prima di pensare a una soluzione. Immagino che sia una casa per massimo due persone date le dimensioni della cucina e che lo spazio si aggiri attorno ai 40 mq. In caso diverso penserei di rivedere anche lo spazio in relazione al resto della casa. Il frigo piccolo Free standing non ha un costo eccessivo, ci sono anche di economici.... mostra di piùDisposizione cucina e arredi
(4) commentiIo metterei chiaramente la zona operativa in nicchia, la zona di contenimento sul muro di destra e un tavolo centrale. Sulla presenza del camino boh, a me personalmente ha stufato ma forse è perché sono troppo vecchio. Se a voi piace potreste anche metterlo, magari evitando l'angolo (occupando solo parte del muro in basso) e limitandone le dimensioni (e anche l'aspetto) all'essenziale. Ps: chiedo scusa, ho letto meglio e ho visto che il camino già c'è. È possibile vedere una sua foto per capire com'è?... mostra di più- 18 giorni fa
- 16 giorni fa

Sponsorizzato
Ricarica la pagina per non vedere più questo specifico annuncio


OFFICINE VITTORIO COLOMBO SAS