Idee restrutturazione e arredamento cucina
27 giorni fa
Risposta in evidenza
Ordina per:Più vecchia
Commenti (14)
- 27 giorni fa
- 26 giorni fa
Discussioni simili
Idee cucina e zona giorno
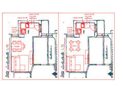
(2) commentiBuongiorno Rossana, l'impostazione abbozzata è corretta, certo che la progettazione è infinita; dipende da quali esigenze/stile di vita (le tue) deve soddisfare. Ex, l'angolo cucina è più che sufficiente per un bilocale (sono oltre 6 metri); quindi magari inserirei delle colonne metti-tutto- Sicuramente girerei il tavolo, orientandolo nell'altra direzione. O, meglio, penserei ad tavolo-consolle o un tavolino trasformabile, da appoggiare nell'angolo da te non arredato (1,90x1,40), o davanti al divano, in modo da far sembrare l'ambiente più grande. Lo spazio è piccolo, ma se progettato bene (colori, allestimento, decori) può diventare molto carino. Se deciderai di avvalerti di una consulenza, potrò esserti di grande aiuto anche on-line. Ciao!... mostra di piùDisposizione e arredamento CUCINA
(5) commentiVi piace l’idea del lavello sotto la finestra? Avete intenzione di inserire un divano o intendete utilizzare la cucina solo per preparare/consumare i pasti?... mostra di piùin cerca di idee per arredare soggiorno e cucina
(4) commentiSalve Irene, la cucina è molto contenuta, presumibilmente sarà ad L sulle pareti cieche... Davanti credo che ci possa andare il tavolo da pranzo, e davanti all'ingresso il soggiorno. Certo, lo spazio non abbonda.... Domanda: la zona notte può essere inclusa nel ragionamento o è "bloccata"? Arch. Oreste Batori... mostra di piùIdee per un ingresso+cucina+salotto confortevole e funzionale
(19) commenti@Sara Amore La scrivania è carinissima anche questa che hai scelto, mi piace come idea. Non so se hai già pensato ad una sedia, o se utilizzerai quelle del tavolo all'occorrenza, ma ti sconsiglio anche per lo spazio quelle grandi a rotelle, magari una piccolina, senza rotelle, ikea ne ha tantissime con le zampine in legno. Tipo: https://www.ikea.com/it/it/p/fanbyn-sedia-bianco-s49228474/ , ma anche tipo https://www.ikea.com/it/it/p/stein-sedia-da-interno-esterno-trasparente-50403669/ Se invece proprio non resisti all'idea delle rotelle https://www.ikea.com/it/it/p/odger-sedia-girevole-bianco-beige-70308685/ . Tornando al colore io sono una fan del tenue, anche su case troppo bianche sono dell'idea che già una parete diversa fa il suo perchè, senza esagerare con toni troppo accesi, però questo è a gusto, a me un rosso/bordeaux/viola stancherebbero alla vista oltre che crearmi tensione, ma ripeto è solo un mio modestissimo parere. Fidati se già buttassi su quel divano due cuscini di un altra tonalità, es del beje o grigio perla, mettessi delle tende ed un tappeto sarebbe già un altro ambiente. In ogni caso una tinta diversa dal bianco freddo su tutta la sala la sceglierei. Io ho optato per la mia sala un bianco "sporco" tendente al rosato, perchè poi ho realizzato una parete, quella dietro il tavolo, con un tortora tenue, ed è già un altra cosa, spicca rispetto al soffitto, la rendi più calda ed accogliente. :)... mostra di più- 26 giorni fa
- 26 giorni fa
- 25 giorni fa
- 25 giorni faUltima modifica: 25 giorni fa
- 25 giorni fa
- 24 giorni faUltima modifica: 24 giorni fa
- 24 giorni fa
- 23 giorni fa
- 23 giorni fa
- 23 giorni fa
- 22 giorni faUltima modifica: 22 giorni fa

Sponsorizzato
Ricarica la pagina per non vedere più questo specifico annuncio








OFFICINE VITTORIO COLOMBO SAS