Ciao, ma perchè la cucina occupa solo quell'angoletto lì? Come usi il resto della stanza? C'è davvero una doppia portafinestra sulla parete opposta? Insomma, forse è meglio vedere la casa per intero così possiamo capire...
Ti prego di scusarmi O Tone ma ci sono dei parametri vitali e delle norme che devi prendere in considerazione nell'abitare questo spazio.
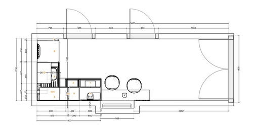
La cucina posizionata in questo corridoio ingresso non avrebbe alcun riciclo d'aria e nessuna fonte di luce naturale.
Ti preoccupi degli odori ma in questo caso ristagneranno nell'ingresso e finiranno, con l'aprire le porte, anche negli altri spazi.
Inoltre nella piantina del post precedente la posizione della porta del bagno non è la stessa di questa piantina.
Nella precedente la spalletta è di 34cm mentre in questa è 75cm. Farai dei lavori nel bagno per renderlo a norma? perchè servirebbe un antibagno se posizioni la cucina nel corridoio
Inoltre se la cucina sarà utilizzata solo da una persona puoi ridimensionarla
OFFICINE VITTORIO COLOMBO SAS siamo sicuri che sia la stessa casa? In questa cucina ci sono due porte, una portafinestra sul lato stretto e una finestra sopra il tavolino. Ma se così fosse direi che il progetto di Officine rende il monolocale molto funzionale e carino :)
In ogni caso o tone io il tuo progetto lo boccio in toto :)
O tone forse potrebbe interessarti questa soluzione. Devi verificare le misure perchè i due schemi che hai postato differiscono.
Aprendo l'ambiente devi prevedere antibagno
Considerato che gli impianti li hai indicati anche sulla parete di confine del bagno nell'altro post ho pensato alla cucina su quella parete con parte a penisola
come tavolo avrei previsto il Norden Ikea o qualcosa di simile e un divano letto
vicino al bagno armadio guardaroba, cucina a penisola e a seguire divano letto
fronte cucina mezze colonne con dispensa, frigo e forno (ho previsto anche micronde ma potresti anche scegliere se l'uno o l'altro se ti serve più spazio contenitivo e sotto il tv ancora moduli cucina contenitivi
indicativamente parete ingresso fronte cucina (ho aggiunto una mensola in cartongesso che potrebbe anche avere una striscia led sopra
e parete fronte ingresso
Sponsorizzato
Ricarica la pagina per non vedere più questo specifico annuncio
silvia piccioni architetto
OFFICINE VITTORIO COLOMBO SAS
Discussioni simili
Bagno in camera con scalino: aiuto per porta e disposizione!
Q
Aiuto disposizione cucina
Q
Aiuto, disposizione cucina.
Q
Aiuto soluzioni disposizione zona cucina soggiorno
Q
o toneAutore originale
OFFICINE VITTORIO COLOMBO SAS
Cuiprodest?
mixx86
OFFICINE VITTORIO COLOMBO SAS