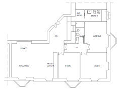
Dubbio divisione degli spazi su 131mq
3 mesi fa
Risposta in evidenza
Ordina per:Più vecchia
Commenti (31)
Discussioni simili
Dubbio sugli spazi all'ingresso
(5) commentiCome ho come ho già scritto, lascerei tutto come sta. Ma per il semplice motivo che così ci sono già degli ambienti definiti e credo sia anche vincolata per gli scarichi dei bagni. Se invece lei volesse rivedere tutto, bisognerebbe abbattere tutte le pareti e ridistribuire gli spazi con un. Uovo progetto è tutto ciò che ne comporta. Io lascerei così senza troppi interventi. Riguardo alla scala, cercherei solo di renderla piacevole alla vista, se non lo fosse, visto che sta in un corridoio di ingresso e nel sottoscala farei un mobile su misura con una chiusura verso il soggiorni, in modo da creare una sorta di parete, di chiusura, per non aver a vista il sottoscala, essendo quel punto non principale, ne in uno spazio più aperto. E i vetri della cucina creerebbero anche leggerezza in quel punto, essendo apribili e scorrevoli.... mostra di piùConsigli suddivisioni degli spazi
(2) commentiBuongiorno Carmela, quello che sta chiedendo è un vero e proprio progetto, attraverso un forum potrà avere suggerimenti e idee ma difficilmente troverà la risposta ai suoi quesiti; ma se gliela stanno costruendo da zero, non avete un progettista? Chi si sta occupando del progetto e di tutti i permessi dovrebbe farvi anche questo no? Non ha senso far realizzare l'involucro a qualcuno e l'interno ad un'altra persona, non ha alcun senso. Io le consiglio di fermarsi un attimo e riflettere su quello che state facendo e su quello che volete, e poi decidere cosa fare, altrimenti rischiate di trovarvi con diversi problemi tra neanche tanto tempo.... mostra di piùConsiglio su ridistribuzione degli spazi
(52) commentiQuello che io trovo sempre un po' assurdo, in base ai mie gusti ovviamente, è che in appartamenti con 5 posti letti (non ricordo se siate in 5), ci sia uno spazio enorme, con due tavoli (o forse la solita isola con sgabelli + tavolo), dedicato all'area cottura/pranzo e uno striminzito divano , ovviamente con un'ingombrante chaise longue, per 5. Calcolando inoltre che oggigiorno stanno tutti davanti a delle tv 50 pollici (ma forse è per questo che poi tutti mettono le tv anche nelle camere, ognuno guarda la tv nel proprio mondo perché in soggiorno non c'è spazio per tutti).... mostra di piùDubbio su distribuzione degli spazi in appartamento
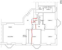
(11) commentiMi sembrava infatti, visto che hai disegnato la sagoma di un "armadio" all'interno del vano, ma non c'è passaggio, quanti cm ci sono tra il bordo dell'armadio e la paretina dietro al letto? Direi che ne dovresti calcolare come minimo 60 credo :) Forse dovresti eliminare la panca davanti al letto e lasciare spazio dietro. Eventualmente potresti prevedere una testata "bassa" in muratura... mostra di più- 3 mesi fa
- 3 mesi fa
- 3 mesi faUltima modifica: 3 mesi fa
- 3 mesi fa
- 3 mesi fa
- 3 mesi fa
- 3 mesi faUltima modifica: 3 mesi fa
- 3 mesi fa
- 3 mesi fa
- 3 mesi faUltima modifica: 3 mesi fa
- 3 mesi fa
- 3 mesi fa
- 3 mesi fa
- 3 mesi fa
- 3 mesi fa
- 3 mesi fa
- 3 mesi fa
- 2 mesi faUltima modifica: 2 mesi fa
- 3 giorni fa
- 3 giorni fa
- 2 giorni fa
- 2 giorni faUltima modifica: 2 giorni fa
- 11 ore fa

Sponsorizzato
Ricarica la pagina per non vedere più questo specifico annuncio


















nonnetta