Open Space di 44mq quadrato con pilastro centrale
24 giorni fa
Risposta in evidenza
Ordina per:Più vecchia
Commenti (7)
- 24 giorni fa
- 24 giorni fa
Discussioni simili
Nascondere fiancata frigo in open space
(24) commentiCiao Alessandro, concordo con la spalletta in cartongesso che potrebbe essere liscia o con vani espositivi aperti e dotati magari di illuminazione per risaltare oggetti come nell'esempio (ovviamente evitando nel tuo caso il ribassamento): Il pilastro lì vicino potrebbe essere valorizzato/caratterizzato realizzando allo stesso modo una struttura simile che lo inglobi creando un gioco di volumi nella stanza. Dipende dalla disposizione del resto degli arredi.... mostra di piùPosizionamento pilastro interno
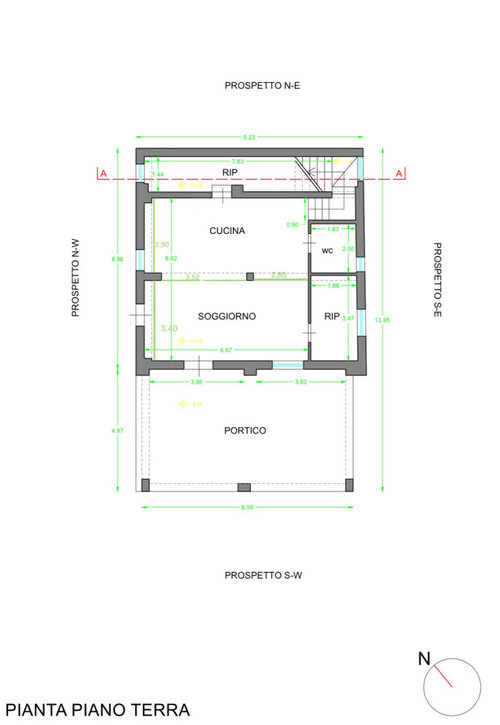
(8) commentiAh! Ecco. Ora si che si capisce. Non riuscivo a capire come si potesse parlare di pilastri su una casa già costruita in quanto l'aggiunta di un pilastro modificherebbe i diagrammi del momento, del taglio e della torsione sulla trave al di sopra del pilastro. Il modo in cui modificherebbe il comportamento della trave rispetto a tutti gli sforzi non sarebbe corretto in zona sismica in quanto migliorerebbe solo il momento positivo, ma genererebbe un momento negativo sul pilastro centrale, un taglio massimo proprio dove la trave è meno predisposta allo scopo e lo stesso vale per la torsione. Senza parlare poidegli scarichi in fondazione. Però ora il discorso è chiaro. Ciò che leggo in pianta è una doppia campata di pilastri, come giustamente deve essere, una sul lato sinistro, nel muro ed individuati, per ciò che ci riguarda, con le sigle P5, P6, P7 e P8, in totale quattro pilasti. Sul lato che a te interessa, invece ne leggo solo tre più uno esterno al di sotto (presumo di un piano sovrastante. Così come si legge la cosa, se i telai sono ancora in fase di calcolo, la posizione di P16 è indifferente (sarebbe prassi allinearlo orizzontalmente con P6 ma se ne può tranquillamente fare a meno se si riesce a mettere sopra una trave a spessore. Se, come temo sia a causa delle limitazioni geometriche imposte dalla vigente normativa, la trave a spessore non verifca (parlo dell'ipotesi pilastro centrato) salvo aumentare le sezioni dei pilastri, hai due possibilità: o vedi la trave fuoriscire dal solaio di copertura o aumenti il diametro dei pilasti di appoggio della trave. Sicuramenteè questo il motivo per cui il tuo tecnico, immagino sia più propenso all'allineamento con P6. Quindi, dal punto di vista estetico e ricapitolando, se la trave che collegherà P6 con P16 è a spessore allora ha senso metterlo centalmente, se invece la trave a spessore non verifica, allora non hai scelta: deve essere allineato a P6 altrimenti vedrai, a lavoro finito e per sempre, una trave storta fuoriuscire dal solaio. Infine non mi è chiaro come funzionino i collegamenti previsti dalla vigente normativa in zona sismica. Cioè dato che ciascun solaio deve essere chiuso da travi nelle due direzioni, va da se che che hai bisogno di quattro travi per solaio se di forma qudrilatera. Nella migliore delle ipotesi hai bisogno di tre travi se e solo se il solaio ha forma triangolare. Insomma, ciò che voglio dire è che non voglio spaventarti perché magari, non avendo chiara la situazione di progetto sbaglio io, ma mi sembra che manchi un pilasto. Cioè, a livello del solaio di copertura del piano (in senso più o meno orizzontale per capirci), parlando di travi, se P6 va in P16, P7 in P14 e P8 in P15, nell'altro senso o le chiusure travi sono P16-P14 e P14-P15 che sarebbe una trave a vista sull'esterno e che non vedo (sempre che la parte tratteggiata della pianta sia sopra) o semplicemente P15 va in P16, manca il pilasto la dove la trave P15-P16 incontra la P7-P14 e tutti i collegamenti sono possibili e corretti con solo qualche parte a sbalzo. Ma devi aggiungere un pilastro però.... mostra di piùCome organizzare grande open space...sto facendo la scelta giusta?
(79) commentiBuonasera Paola, grazie grazie per il commento! Certo posso capire che nelle foto possa sembrare poco "umana", però ovviamente alcune cose sul piano della cucina, la coperta di pile sul divano, e piccoli oggetti, li ho spostati prima di far le foto... Inoltre ci abito solo da un mese, sicuramente dovrà essere arricchita da un quadro, qualche soprammobile...ma sinceramente non molto altro per quanto riguarda i miei gusti, a me piace così abbastanza "pulita", il pavimento in legno poi lo reputo quasi un elemento di arredo...se però hai qualche spunto per renderla più calda, lo ascolto volentieri! I caloriferi sono rimasti quelli dell'impianto originale (anzi ne ho anche tolto uno), il termotecnico ha reputato servissero tutti per un calore uniforme... Il salone è comunque ampio, circa 50mq e le finestre numerose (7)... mostra di piùTV e divani nell'open space
(7) commentiBuongiorno, lavoro per diverse piattaforme di design, nel mio profilo potete trovare diversi lavori fatti da me. La qualità dei miei rendering può essere vista in ogni dettaglio della stanza. Nel tuo caso farei un sopralluogo architettonico in base al progetto che hai caricato, mi servirebbero anche delle immagini. Mettiti in contatto con il mio WhatsApp, lì puoi trovare maggiori informazioni. WhatsApp... mostra di più- 24 giorni fa
- 24 giorni faPablo Merendino ha ringraziato OFFICINE VITTORIO COLOMBO SAS
- 23 giorni fa

Sponsorizzato
Ricarica la pagina per non vedere più questo specifico annuncio



silvia piccioni architetto