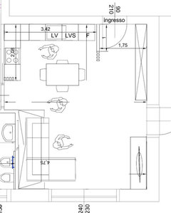
Disposizione open space
il mese scorso
Risposta in evidenza
Ordina per:Più vecchia
Commenti (8)
- il mese scorsoUltima modifica: il mese scorso
- il mese scorsoUltima modifica: il mese scorso
Discussioni simili
Disposizione Open Space
(18) commentisui due lati mi sembra sarebbe troppo per l'ambiente, rischiando di diventare opprimente e poco pratica. La parte operativa la manterresti in basso, sia per via degli attacchi sia perché è molto più comodo avere tutto vicino. In alto cosa metteresti? un po' di dispensa? piuttosto meglio una madia capiente con un bel quadro sopra! la foto che mostri riflette un ambiente più stretto del tuo ed è una tipica cucina, mentre il tuo è un open space con salotto....... mostra di piùdisposizione open space
(35) commentiSi certo, però anche da un punto di vista estetico non addosserei un divano a una portafinestra come fosse una parete, tanto più se dispongo di spazi molto ampi dove tutto può trovare il suo posto. Anzi un divano angolare in spazio adeguato starebbe bene anche leggermente scostato dalla parete di fondo. In quanto alla distanza dal televisore, io ho un 32 pollici e divano appoggiato a parete a 4,5 Mt, ma non abbiamo problemi a guardarlo, nel senso che non lo avverto troppo lontano. Certo uno schermo più grande sarebbe più gradevole, ma non indispensabile.... mostra di piùDisposizione open space
(5) commentiBuongiorno Livia, Le consiglierei di specchiare il divano in modo da posizionare la tv sul muro. Bisognerebbe verificare la lunghezza della sala. Se ha bisogno mi scriva in privato, sono disponibile ad approfondire la questione. Elisa... mostra di piùDisposizione open space nuova costruzione
(24) commentiBuongiorno, ho riordinato un po' le idee e riassunto tutte quelle che mi avete dato, ho messo giù 2 possibili soluzioni. Quale vi convince di più? o se ce ne sono altre, ben venga :) PS: prima foto TAVOLO 150x90 e DIVANO 250x160: Seconda foto TAVOLO 170x100+ISOLA 100x100 e DIVANO 240x 165 Ho preso delle misure più o meno standard, in quanto é ancora tutto modificabile e voglio solo trovare la soluzione migliore diciamo. Tra qualche giorno avrò anche l'opinione di un architetto e vi scriverò la sua proposta. Grazie... mostra di più- il mese scorso
- il mese scorso
- il mese scorso
- il mese scorso
- il mese scorso

Sponsorizzato
Ricarica la pagina per non vedere più questo specifico annuncio





OFFICINE VITTORIO COLOMBO SAS