Buongiorno, ho acquistato questa casa..
Come disporreste la zona giorno ??
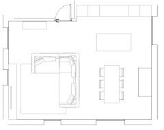
Premesso che gli attacchi della cucina non posso spostarli, e che sulla parete da 600 cm c’è, al centro della parete, un camino da 150 cm x 70 cm in muratura.. avanzano circa 120 cm tra camino e angolo del muro e altrettanti tra camino e finestra.
Grazie 😘
Cuiprodest?
MartaAutore originale
Discussioni simili
Aiuto - Ribaltare zona giorno e zona notte
Q
SOS Lavori in corso ! Aiuto x disposizione e arredo zona giorno
Q
aiuto su disposizione zona giorno
Q
Aiuto disposizione zona giorno
Q
Cuiprodest?
MartaAutore originale
Cuiprodest?
silvia piccioni architetto
MartaAutore originale