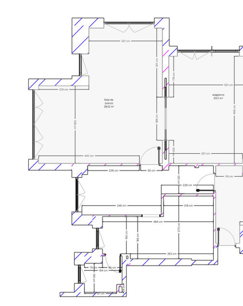
Ciao a tutti, devo organizzare gli spazi della zona giorno che attualmente sono divisi in cucina ad L, tinello, sala da pranzo e salotto. Foto 1; premesso che ho bisogno di uno studio/camera ospiti sono molto indecisa se trasformare l'attuale cucina in studio/ospiti (ci sarebbe anche bagnetto) l'attuale tinello in una cucina piccola e lasciare la sala da pranzo così com'è oppure realizzare una grande cucina molto grande unendo cucina e tinello e ricavare nella sala da pranzo una zona studio e all'occorrenza trasformarla in stanza ospiti, scegliendo magari al posto di un tavolo allungabile una consolle, le finestre della cucina e del tinello sono porte finestre.
mixx86
AMBROGIO RIVA
Discussioni simili
Cucina e zona pranzo molto grande, aiuto!
Q
Ristrutturazione grande soggiorno e cucina
Q
Isola cucina dilemma design, lunghezza e posizione
Q
cucina a ovest o a est? dilemma!
Q
OFFICINE VITTORIO COLOMBO SAS
Fabiola CiaralliAutore originale
mixx86
OFFICINE VITTORIO COLOMBO SAS
stefaniasasso61
Fabiola CiaralliAutore originale
Fabiola CiaralliAutore originale
OFFICINE VITTORIO COLOMBO SAS
Fabiola CiaralliAutore originale
mixx86