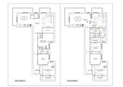
Consigli per migliorare questa pianta prima di iniziare i lavori
il mese scorso
Ultima modifica:il mese scorso
Risposta in evidenza
Ordina per:Più vecchia
Commenti (40)
- il mese scorso
Discussioni simili
Idee per migliorare questo bagno
(28) commentiSalute a tutti! Aprii questa discussione così d'impeto, un anno fa, appena iscritta a questo portale, curiosa di sperimentare io stessa questa novità. Un pretesto, più che un'esigenza impellente. Da qui si capisce il perché non è ancora stato fatto nulla (bagno) anche se il motivo principale sta nel fatto che c'è il mare di mezzo ed un neonato nel frattempo arrivato! Tuttavia, Non ritengo di essere stata "ferma" e posso dire che grazie ad Houzz ( ai vostri commenti, lavori, articoli) ho ricevuto molti stimoli e ampliato il modo di vedere le cose e i miei gusti (ed in testa ho diverse idee). Ma passerà ancora un po' di tempo prima di poterle realizzare. Nel frattempo, ho dato la priorità ad altri ambienti della casa (camere e cucina), investendo via via, le caparre degli affitti, divertendomi a trovare cose su subito.it e nei mercatini. Questo lavoro sarà documentato a breve ( entro agosto). Ringrazio e saluto tutti.... mostra di piùHO BISOGNO DI AIUTO PER MIGLIORARE GLI SPAZI DELLA CASA
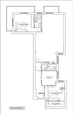
(8) commentiBuongiorno Marilù, il consiglio fornitole da TailorHouse mi sembra assolutamente condivisibile e risolutivo. Riguardo alla restante parte della casa, credo potrebbe considerare l'idea di spostare la cucina sulla parete che divide il soggiorno dalla camera a due letti (singoli), utilizzando la parete attualmente occupata dalla cucina con una scaffalatura/mobile televisione e ruotando il divano di 180°. Potrebbe inoltre realizzare un piano/piccola penisola a lato della porta di ingresso. Il tavolo da pranzo troverebbe posto , a questo punto, nell'angolo occupato dall'attuale mobile televisione. Con questa riorganizzazione potrebbe evitare di avere la cucina immediatamente a vista, entrando dall'ingresso dell'abitazione. Riguardo alla restante parte dell'abitazione, forse rivedrei l'organizzazione del bagno più ampio, dove trovo poco funzionale la separazione wc e doccia dai restanti sanitari. Spero di esserle stato utile. Mi contatti pure per chiarimenti in merito. Buona giornata... mostra di piùRistrutturazione: PRIMA e DOPO. Consigli finali...
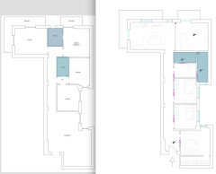
(10) commentiBuongiorno Samuele, devo fare i complimenti per la proposta dell'architetto da te incaricato, rispetto allo stato di fatto nettamente migliorativa, rispettando le tue richieste. Come dice Cristina Dragone Architetto, pure io sono scettico in merito alla cucina posizionata subito all'ingresso, sarebbe sempre opportuno creare un filtro... Per quanto riguarda la zona studio che vorresti realizzare per la tua attività mi piace molto il riferimento allegato, sono però a farti notare, che mentre nell'immagine alla quale ti sei ispirato, vi è abbondante luce naturale, nel tuo caso, avresti un'illuminazione puramente artificiale, in quanto zona priva di finestre. Ti consiglio quindi di pensare con il tuo architetto, in che modo portare luce dalla camera. Infine essendoci un bagno di servizio nella zona giorno, non mi dispiace assolutamente entrare nel bagno padronale passando dalla cabina, anzi ritengo possa tornare molto comoda, in quanto la potresti usare come zona spogliatoio! Spero che i miei consigli ti possano essere di aiuto per ottimizzare il tutto. Ti auguro di raggiungere il traguardo da te stabilito. Cordialmente. Lorenzo Galvani - Quadrastudio... mostra di piùpianta di progetto - soluzioni per cameretta e porte
(6) commenticiao Alice, per le porte se mettile filo muro secondo me risolvi il problema, costano di più ma sono stupende e se decidi per parete colorata, carta o decor l'effetto risulta elegante e la parete acquista valore. Cameretta, provo così a braccio: per la'rmadio sarebbe opportuno avere 60cm (spendi poi meno per arredare perchè 55 è una misura non standard), sembrerebbe che 5 cm si riescano a rubare. Lì dove è disegnato metterei un armadio a tutta altezza, probabilmente lo dovrai fare scorrevole (non cisono tutt ele quote ma a occhio...). sfrutterei quel rientro dietro alla testiera del letto per creare una libreria da terra a soffitto che farà anche da testiera al letto. In quella spalletta di 21 cm di parete (alla dovuta altezza) potresti mettere delle mensole, 20 cm non sono molti ma ritengo opportuno sfruttare il massimo possibile. Scrivania, restano circa 130 cm tra parete e letto: qui potresti mettere una scrivania pieghevole (ce ne sono di belline, fatte bene) e in alto sopra la linea della porta (e delle finestre) eventualmente un mensolone con eventualmente un filo led incassato così da illuminare bene la stanza. Se il riscaldamento è a pavimento anche lo spazio sotto-finestra potrebbe essere attrezzato con una mini libreria.... mostra di più- il mese scorso
- il mese scorsoUltima modifica: il mese scorso
- il mese scorsoUltima modifica: il mese scorso
- il mese scorsoUltima modifica: il mese scorso
- il mese scorso
- il mese scorso
- il mese scorso
- il mese scorsoUltima modifica: il mese scorsoAntonio Coppola ha ringraziato AMBROGIO RIVA
- il mese scorso
- il mese scorsoUltima modifica: il mese scorso
- il mese scorso
- il mese scorso
- il mese scorso
- il mese scorsoUltima modifica: il mese scorso
- il mese scorso
- il mese scorsoUltima modifica: il mese scorso
- il mese scorsoUltima modifica: 29 giorni fa
- il mese scorsoUltima modifica: il mese scorso
- il mese scorsoUltima modifica: il mese scorso
- 29 giorni faUltima modifica: 29 giorni fa
- 29 giorni fa
- 29 giorni fa
- 29 giorni faUltima modifica: 29 giorni fa
- 29 giorni faUltima modifica: 29 giorni fa
- 29 giorni faUltima modifica: 29 giorni fa
- 29 giorni fa
- 29 giorni fa
- 29 giorni fa
- 29 giorni faUltima modifica: 29 giorni fa
- 29 giorni fa
- 29 giorni faUltima modifica: 29 giorni fa
- 29 giorni faUltima modifica: 29 giorni fa
- 29 giorni fa
- 29 giorni fa
- 26 giorni fa
- 26 giorni fa
- 26 giorni fa
- 26 giorni fa

Sponsorizzato
Ricarica la pagina per non vedere più questo specifico annuncio

































silvia piccioni architetto