Disposizione cucina, isola o meno?
il mese scorso
Ultima modifica:il mese scorso
Risposta in evidenza
Ordina per:Più vecchia
Commenti (23)
- il mese scorso
- il mese scorso
Discussioni simili
CUCINA CON ISOLA O SENZA?
(13) commentiTante utili considerazioni ! L' approccio corretto, sarebbe avere un progetto in mano con una disposizione di suo piacimento, e andare con quella dal mobilificio. In questo modo si evitano interpretazioni sommarie piu' legate alla necessità della vendita ,che alla progettazione di uno spazio ottimale. Ventiquattro metri quadri sono una bella metratura, va riproporzionata l'isola, meno profonda , avere il tavolo e lo snack troppo vicini non è molto elegante, fa un effetto bar ristorante, per intenderci, se non vuole rinunciare ad un discorso di seduta con sgabello, per colazione, meglio ricavare lo spazio diversamente, senza aggetto ,ma togliendo del volume all'isola come nella foto . Opterei per lavello a muro, e piano cottura sull'isola, in questa maniera l'isola sarà piu' ordine, e lo sporco meno in vista. Se la sua è una casa passiva di ultima generazione non necessità di cappa, e il piano cottura è obbligatoriamente a induzione, l'induzione resta in ogni caso il piano piu' efficiente per risparmio energetico, e per la facilità di pulizia e mantenimento in un ambiente aperto. Se non è una casa passiva ,puo installare cappe integrate al piano cottura, predisponendo a pavimento lo scarico con appositi tubi a sezione rettangolare, o farla autofiltrante con ionizzatori allego un link della falmec che spiega la funzione . https://youtu.be/DYYYnIEuYJg o meglio ancora Bora https://youtu.be/IYjZAMEd8Gw la meno impattante in assoluto se integrata al piano cottura . Ci sono colonne che nascondono piani di lavoro e dispense,puo' essere interessante valutarle . Ogni spazio e ogni vissuto porta dietro aspettative e sogni, cerchi di ragionare in primis con la logica dello spazio e della funzione per un risultato ottimale, e valuti il suo stile per tutto l'ambiente. per non avere quella sensazione di mobili appoggiati in un contenitore. www.progettopositivo.it https://www.facebook.com/archicode/... mostra di piùConsigli su soggiorno con cucina (più o meno) a vista in 55mq!
(27) commentiMolto belle ed ariose le proposte di silvia piccioni architetto! Qualcosa si potrebbe modificare anche nel bagno di servizio e nella scala. Per il bagno accorciandolo leggermente inserirei solo il lavabo con wc, l'adiacente guardaroba sarebbe più ampio e sfruttabile. Con le porte filomuro queste "scompaiono" alla vista nella parete che puoi caratterizzare con pittura, parato, ecc: Per la scala, per renderla più comoda, si potrebbe anticipare il punto di salita eliminando nei 3 angoli i tripli gradini a piede d'oca e lasciandone solo 2 (il calcolo corretto verrà fatto dal tuo tecnico). In questo modo verrebbe a crearsi una superficie d'appoggio arredabile ad esempio con una madia sospesa a servizio del tavolo. Sulle due rampe cristalli stratificati trasparenti per lasciar passare la luce naturale anche sulla scala e dare più profondità. Sotto uno schizzo di cosa intendo, le misure sono indicative perchè la tua pianta non era quotata: Hai tantissime cose cui pensare e valutare, ti consiglio di avvalerti di un professionista che stili un progetto su misura per voi e segua tutte le fasi della sua realizzazione.... mostra di piùIsola sì o isola no?
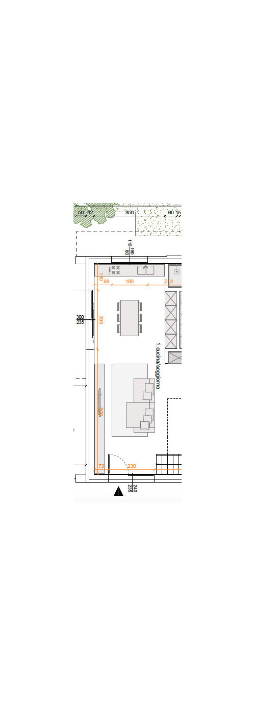
(62) commentiBuongiorno, dopo una serie di approfondimenti, riapriamo il thread :) Dunque, procederemo con la demolizione della parete principale (evidenziata con linea magenta orizzontale nello screenshot) unendo i due ambienti e usando il cristallo come corrimano / separatore. Il costruttore però non ci permette di eliminare la parete più corta (linea magenta verticale) per via della normativa che prevede l'obbligo di una porta prima del bagno. Non è disponibile a valutare modifiche del bagno, per questo motivo alleghiamo due proposte, utilizzando delle porte in vetro scorrevoli esterne. C'è qualcosa tra le 2 che vi convince di più? In un caso sarebbero 2 ante di vetro, di cui una fissa. Nel secondo caso invece un'anta unica scorrevole di circa 120cm di larghezza. Questo genere di proposte sarebbe "legale" per la questione antibagno? O devono essere porte in legno? Grazie... mostra di piùcucina disposizione? isola si o no?
(16) commentiMia sorella nella sua cucina (separata dal soggiorno) progettata 20 anni fa ha un'isola piccola al centro (un cubo da 120 cm con 6 fuochi e cassettoni da una parte, lavello e lavastoviglie sul lato opposto) e una dispensa nell'angolo profonda 120 e molto capiente, tant'è che vi ha riposto due servizi completi da 24, ciotole, bicchieri, insomma una marea di stoviglie. Ti mostro la sua cucina, poi toglierò le foto. Lei usa come piano di lavoro il piano in marmo dietro all'isola, tra l'isola e il retro hanno lasciato meno di 80 cm e si trovano benissimo... mostra di più- il mese scorsoUltima modifica: il mese scorso
- il mese scorso
- il mese scorsoMario Rossetto ha ringraziato OFFICINE VITTORIO COLOMBO SAS
- il mese scorsoUltima modifica: il mese scorso
- il mese scorso
- il mese scorsoUltima modifica: il mese scorso
- il mese scorsoUltima modifica: il mese scorso
- il mese scorso
- il mese scorso
- il mese scorso
- 26 giorni fa
- 26 giorni faUltima modifica: 26 giorni fa
- 25 giorni faUltima modifica: 25 giorni fa
- 25 giorni fa
- 25 giorni faUltima modifica: 25 giorni fa
- 25 giorni faUltima modifica: 25 giorni fa
- 25 giorni fa
- 25 giorni faUltima modifica: 25 giorni fa
- 25 giorni fa
- 25 giorni fa

Sponsorizzato
Ricarica la pagina per non vedere più questo specifico annuncio









OFFICINE VITTORIO COLOMBO SAS